Skip to content

Queensland

Dual Income Advantage. One Property, Endless Possibilities

Positioned in a high-demand rental pocket, this dual-income property was secured under strict time pressure to meet our client’s clear objective: achieve a minimum 6.5% rental return within just two weeks. With limited time and a performance-focused brief, M4Properties identified, negotiated, and delivered a cash-flowing asset that met the target; without compromise.

Originally listed at $1m, we negotiated the purchase down to $975k, securing an immediate $25k equity gain at acquisition. With a combined rental return of $1,200 per week, the property achieves and exceeds the client’s required yield benchmark, delivering strong cash flow from day one.

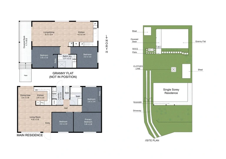
The asset comprises a three-bedroom main dwelling plus a fully self-contained two-bedroom granny flat; a proven dual-income structure designed purely for income performance. This configuration reduces vacancy risk, diversifies income streams, and strengthens overall yield stability. For an investor focused on returns, this structure provides both immediate capital and long-term capital growth potential.

Located in a well performing rental corridor, close to schools, shopping centres, public transport and major transport links, the property offers strong tenant demand fundamentals. High occupancy rates in the area further support income continuity and long-term portfolio strength.

Property Highlights

Deal Snapshot

Why This Was a Smart Buy

Smart Investing With M4 Properties—Your Property Success Starts Here.

Turn your vision into real value. M4 will secure your wealth and portfolio growth with insight, strategy, and local expertise.
Years of
Experience
0 +
Properties Bought Below Market Value
0 %
Completed
Transactions
0 +

Purchased Properties

M4 Properties’ expertise and calculated analysis help you
acquire high-yielding properties across Australia.